不動産物件/検索 不動産物件/検索

物件登録日:2026年01月20日

矢野町売土地

売土地

出雲ドーム近く、閑静な住宅街、生鮮食品おだ店まで260m、ナフコ北出雲店650m、生活環境良好

※画像クリックで拡大表示します

価格
1090.83万円
管理費(月額)
なし
積立金(月額)
なし
その他一時金
121000
仲介手数料
220000円
取引形態
売主
所在地
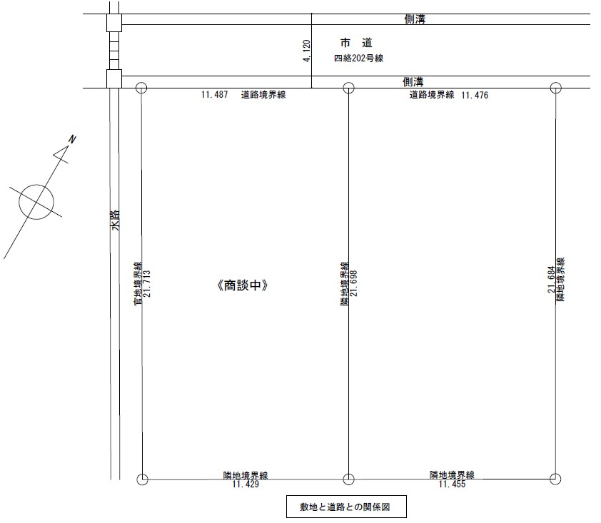
出雲市 矢野町 739番3
学校区
四絡小学校、第三中学校
引渡日
即時
現状
更地
国土法
-
交通
沿線 駅名:一畑電鉄高浜駅
駅距離:1900m 駅歩:24分
土地面積
248.71㎡
都市計画
未線引
地目
宅地
用途地域
指定無し
建ぺい率
70%
容積率
200%
土地権利
所有権
特記事項 隣保に41㎡の雑種地あり、
備考 -

この物件へのお問い合わせ

お問い合わせ物件名 矢野町売土地
お名前必須
フリガナ
お問い合わせ内容必須

ご連絡先 お返事を連絡させていただく連絡先を、ひとつ以上ご記入ください。

メールアドレス必須
電話番号必須
FAX必須

お問い合わせをいただく前に個人情報保護方針にご同意の上、送信ボタンを押してください。